Inspirasjon
DIY: Slik bygger du pergola med tak
Publisert 2. juli 2024 • Sist endret 26. sep. 2025
Mange lurer på hvordan man bygger pergola med tak. Vårt forslag er å følge denne fremgangsmåten på pergola med åpent tak fra Talgø.
Uterom
Diy

En pergola i hagen gir en deilig, sval plass i sommervarmen. Denne modellen fra MøreRoyal® har en åpen og luftig løsning, samtidig som den har åpent tak som gir le for solen.
Den er forholdsvis enkel å sette sammen, så er du litt handy klarer du fint å montere den på en dag.
Talgø er leverandør av MøreRoyal®, dobbeltbehandlede materialer til uterommet.
Les også: DIY blomsterkasse av hagesviller
Les også: DIY sandkasse
Slik kan du bygge pergola med tak
Mål opp og monter stolpene i stolpesko, og skru sammen toppramme og det åpne taket på et flatt underlag. Hvis du ikke har nok løftehjelp for å få taket på plass, kan du vurdere å montere taket direkte på stolpene.
Fest liggende lekter på bakveggen og monter spikerslag og stående lekter på front- og sidevegger med passende avstander og skruer.
Les også: Dette er reglene for tak over pergola
Her får du hele fremgangsmåten steg for steg, med en detaljert beskrivelse av dimensjoner, lengder og hvilke skruer som skal brukes hvor:
Materialer:
- MøreRoyal stolper 95x95, ca. 20 løpemeter
- MøreRoyal lekter - Concise 34x70, ca. 90 løpemeter
- MøreRoyal lekter - Concise 34x45, ca. 85 løpemeter
- MøreRoyal K-virke 48x148, ca. 50 løpemeter
- Stolpesko
- Skruer i A2 eller A4: 6x120, 5x90 og 4,4x72
Tips! Ikke 95x95 på lager? Da kan du bruke 2 stk. 48x98. Spør en av fagpersonene i ditt lokale XL-BYGG byggevarehus om råd dersom du er i tvil.
Kappliste:
- 8 stk. MøreRoyal stolper 95x95 à 2200 mm
- 34 stk. MøreRoyal lekter - Concise 34x70 – stående lekter, à 2348 mm
- 33 stk. MøreRoyal lekter - Concise 34x45 – liggende lekter, à 2442 mm
- 3 stk. MøreRoyal lekter - Concise 34x70 – spikerslag sidevegg, à 810 mm
- 3 stk. MøreRoyal lekter - Concise 34x70 – spikerslag frontvegg, à 1088 mm
- 4 stk. MøreRoyal K-virke 48x148 – dragere, à 4000 mm
- 11 stk. MøreRoyal K-virke 48x148 - sperrer, à 2808 mm
Husk å beregne minst 10 prosent ekstra til kapp.
Utvalgte produkter fra MøreRoyal
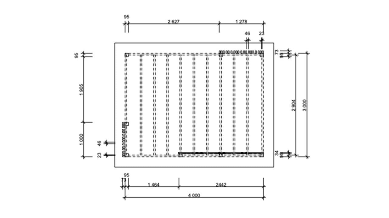
Se her for planskisse:

Utstyr du trenger:
- Kappsag
- Skrumaskin/drill
- Vater
- Vinkel
- Målebånd
- Tommestokk
- Blyant


Bilder over: Med en åpen og luftig pergola med åpent tak får du en sval plass i hagen. Foto: Talgø MøreRoyal
Slik gjør du:
- Mål opp og monter stolpene. Bruk solide stolpesko og fest dem godt i underlaget. Stolpene må kanskje tilpasses for å passe i stolpeskoene.
- Skru sammen topprammen. Du trenger et flatt underlag på ca. 3 x 4 meter. Start med to dragere og to sperrer. Sperrene skal monteres mellom dragerne. Du fester sperrene med tre 6x120 skruer gjennom drager og inn i sperre til de danner en firkantet ramme. Resten av sperrene monteres med c/c 395 mm.
Mål opp fra der den første sperren starter til neste sperre. Monter og skru sammen på samme måte som med de to første. Til slutt skrur du de to siste dragerne utenpå de to første, bruk 5x90 skruer på disse.
Dersom du ikke har nok hjelp til å løfte, bør du vurdere å montere taket direkte på stolpene. Pass på sikkerheten i høyden mens du holder på.
Er dere to og du har hjelp til å løfte? Da kan du sette inn sperrene når konstruksjonen ligger på bakken. - Løft deretter taket opp på stolpene, og stikkskru fra stolpene og opp i dragerne med 6x120 skruer.
- Monter liggende lekter på innsiden av bakveggen med ca. 20 mm mellomrom. Bruk 4,4x72 skruer.
- Monter liggende spikerslag på front og sidevegg. Det nederste spikerslaget monteres 100 mm opp fra gulvet, neste spikerslag 700 mm opp fra gulvet og det øverste 1400 mm. Stikkskru med 4,4x72 skruer.
- Monter stående lekter på utsiden i front og på siden. Disse monterer du med varierende mellomrom. Festes med 1 stk. 6x120 skrue i hvert spikerslag og 1 stk. 6x120 skrue på toppen.
Riktig forankring er viktig
For å være sikker på at konstruksjonen er forankret godt nok til underlaget, er det lurt å kvalitetssikre planene for den endelige konstruksjonen. Spør en av våre ansatte i ditt lokale XL-BYGG byggevarehus om råd.
Husk at lokale forhold kan ha betydning for hvor mye som kreves av selve konstruksjonen. Vurder om det er behov for ekstra avstiving, det er spesielt viktig for åpne konstruksjoner.
Denne oppskriften på pergola med åpent tak og vegger er laget av Talgø MøreRoyal. Du kan se forslag til flere DIY-prosjekter på deres nettsider.




